全自动反冲洗过滤器压差控制器动作值可设定为0.03-0.07MPa,当过滤器前后压差达到压差控制器设定值时,压差控制器动作,过滤器排污阀开启,30-60秒结束,转向蝶阀复位,继续排污3-5秒,关闭排污阀
全自动反冲洗过滤器广泛用于冶金、化工、石油、造纸、医药、食品、采矿、电力、城市给水领域。诸如工业废水, 循环水的过滤,废油过滤处理,冶金行业的连铸水系统、高炉水系统,热轧用高压水除鳞系统。是一种易操作的全自动过滤装置
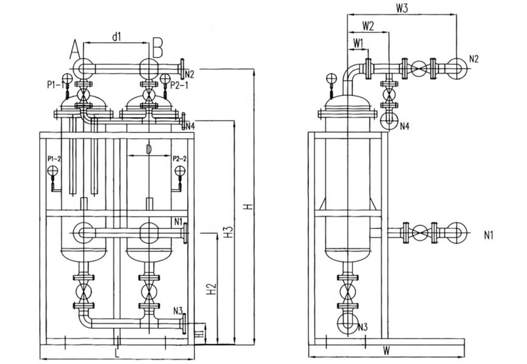
自洁式过滤器的结构组成:都采用全钢分体的结构设计,方便设备的运输和安装,并保证设备的制造精度都采用的是高品质的滤袋和附件,滤袋平均寿命通常超过18个月
自洁式过滤器独创的滤壳整体成型、加工技术,避免钢制滤壳焊接造成的各种滴漏;高强度球墨铸铁材料防腐性能极佳,延长了产品的使用寿命
自洁式过滤器为多功能系统部件,具有压差自动报警、气水分离以及过滤功能。过滤器自洁能力强,不用经常清洗过滤网。对水系统中的氧化铁皮、老垢、污泥和空气等杂质进行有效地排除,以保证水质的清洁
自洁式过滤器适用于造纸、钢铁、化工、发电和环保等需连续用水的场合,用于滤除水体中的固态颗粒和杂质,确保其后续或终端设备能顺利运行,是一种先进、高效且易操作的全自动过滤装置
各行业各种类型的压缩空气站,特别适用于多级离心式、螺杆式、叶片式空气压缩机。小容量可多机合用一台,大容量一台配一台为宜;
设计了前置过滤网,防止柳絮、树叶及废纸吸入,在特殊工况(如湿度大、粉尘浓度大、黄梅时期等),在过滤器入口设置初中效过滤棉,过滤大部分粉尘,减轻滤筒负担,延长使用寿命
普通网式过滤器因其过滤效果好、阻力小而广泛应用于水源过滤、工业循环水系统等领域,
自洁式排气水过滤器安装及注意事项:安装时,水流方向应与设备指示方向一致;尽可能设置旁通管路,以便在过滤器进行清洗或发生故障时不影响系统的正常运行; 过滤器与水处理仪设备配套使用时,应安装在水处理设备进水口之前。
LJG系列自洁式排气水过滤器为多系统部件,具有压差自动报警、气水分离以及过滤功能。过滤器自洁能力强,不用经常清洗过滤网。对水系统中的氧化铁皮、老垢、污泥和空气等杂质进行排除,以使水质的清洁
超滤膜是由仿真模拟微生物半透膜做成的具备一定特点的人力半透膜。它通常由高聚物原材料做成
纳滤膜设备通常用以除去地面水中的有机物、黑色素细胞和地面水中的抗压强度,并在食物和制药业生产加工行业应用收集和获取
超滤膜孔径只能过滤掉大于直径为0.01um和分子量在1000-30万之间的大分子物质,针对钙镁离子这种孔径小于0.01um,分子量远小于1000的小分子物质,超滤膜是无法过滤掉的
在过滤过程中,大分子物质和物质的浓度会附着在膜表面,在一定的营养自然环境下,这种截流微生物菌种会不断发育繁殖,导致超滤膜孔堵塞。必须在原水中加入氢氧化钙、活性氧等还原剂进行杀菌,防止水体受损
超滤膜能有效截留指标组分,去除溶剂,达到浓缩目的;浓缩水清澈明亮,可直接提取回用或排放,节约水资源,降低环保压力
超滤设备的主要元件就是超滤膜,超滤膜的孔径在0.002-0.01微米之间,而一般胶体尺寸均不小于 0.1微米,乳胶不小于0.1微米,大肠菌、葡萄球菌等细菌尺寸不小于0.2μm,悬浮物、微离子等尺寸不小于5微米,因此超滤膜...
超滤是一种以筛分为分离原理,以压力为推动力的膜分离过程,过滤精度在0.005-0.01μm范围内, 可有效去除水中的微粒、胶体、细菌、热源及高分子有机物质
超滤组件要轻拿轻放,并注意保护,由于超滤组件是精密器材,所以在使用安装时要小心,要轻拿轻放,更不能甩坏。组件若停用,要先用清水冲洗干净后,加0.5%甲醛水溶液进行消毒灭菌,并密封好
超滤设备的超滤膜元件采用世界著名膜公司产品,确保了客户得到目前世界上最优质的有机膜元件,从而确保截留性能和膜通量